Rádi bychom vám představili byt 2+1 ve 3. nadzemním podlaží cihlového domu na ulici Nerudova ve Žďáře nad Sázavou. Tento byt o celkové ploše 56 m² nabízí komfortní a moderní bydlení jak pro rodiny, tak pro jednotlivce.
Dispozice:
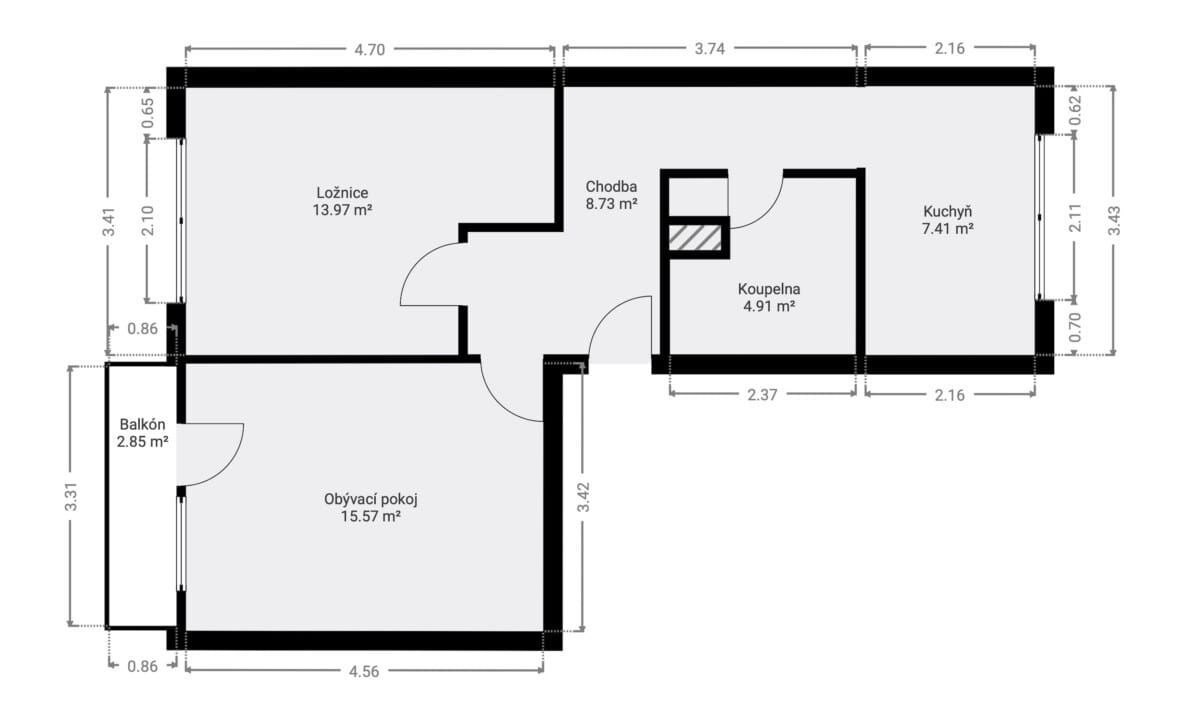
Vstupní chodba, obývací pokoj se vstupem na balkón, ložnice, koupelna s WC, kuchyň.
- Půdorys
Byt prošel před několika lety rekonstrukcí, která zahrnovala modernizaci bytového jádra a vytvoření dětského koutku. Revitalizovaný cihlový dům, ve kterém se byt nachází, nedávno prošel revitalizací včetně pravidelného čištění fasády.
Součástí bytu je balkón poskytující příjemný prostor k relaxaci a také sklep pro uskladnění věcí. Po domluvě může v bytě zůstat i vybavení, což novým majitelům ušetří starosti s vybavováním. V těsné blízkosti se nachází škola, školka a dětské hřiště, což ocení především rodiny s dětmi. Veškerá občanská vybavenost je na dosah ruky. Lokalita tohoto bytu je opravdu ideální. Vše, co potřebujete pro pohodlný život, najdete v blízkém okolí.
Náklady na bydlení je 4.500,-Kč z toho je Fond oprav 1.600,-Kč
Cena bytu je 3.750.000,-Kč včetně právního servisu a provize.
Financování zajistíme na míru pro Vás.
Pokud máte zájem o více informací nebo si chcete byt prohlédnout osobně, neváhejte nás kontaktovat na telefonním čísle.
Děkujeme za pozornost a těšíme se na setkání.
























