Prodej bytu 2+1 s lodžií. Kompletně zrekonstruovaný byt ve Žďáře nad Sázavou
Hledáte byt, kde se spojuje promyšlený prostor, vkusná rekonstrukce a příjemná lokalita? Tento byt ve 2. nadzemním podlaží cihlového domu ve Žďáře nad Sázavou vás překvapí nejen svou atmosférou, ale i praktičností.
Kompletní rekonstrukce, která má úroveň
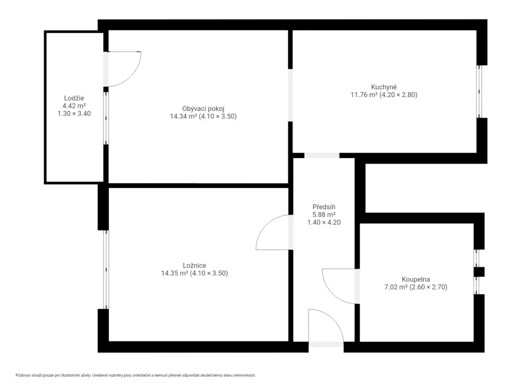
Byt o dispozici 2+1 a celkové ploše 55 m² prošel před cca 10 lety kompletní rekonstrukcí. Byly vyměněny rozvody elektřiny, podlahy, omítky, interiérové dveře s obložkami i koupelna. Zásadní výhodou je také zvětšení koupelny, která nyní nabízí komfortní prostor 7 m² s rohovou vanou i sprchovým koutem. Pohodlí, které není v bytech této velikosti obvyklé.
Celkově působí byt velmi udržovaně, stylově a útulně. Ideální pro jednotlivce, pár i malou rodinu.
Dispozice, která dává smysl
Z prostorné předsíně (5,88 m²) se dostanete do všech hlavních místností. Do kuchyně, ložnice a koupelny. Kuchyň (11,76 m²) je řešena do tvaru „U“, nabízí vestavěné spotřebiče, kvalitní úložné prostory a zásuvky s dojezdy. Radost vařit i uklízet.
Z kuchyně pak plynule přecházíte do světlého obývacího pokoje (14,34 m²), ze kterého vedou dveře na lodžii (4,42 m²). Ta je orientovaná na západ a je ideálním místem na večerní odpočinek. Ložnice (14,35 m²) je vybavena praktickou vestavěnou skříní, kterou určitě oceníte.
Orientace bytu
Byt je velmi dobře orientovaný. Kuchyně a koupelna směřují na východ, obývací pokoj a ložnice na západ. Díky tomu je byt přirozeně prosvětlený po celý den, bez přehřívání v létě.
Dům a technické zázemí
Byt se nachází v udržovaném cihlovém domě s fungujícím SVJ a aktivním předsedou. Dům je průběžně modernizován. Aktuálně probíhá výměna plastových oken, nový majitel tedy převezme byt již s novými okny. Vytápění i ohřev vody jsou řešeny dálkově. Do bytu je navíc zaveden optický internet pro maximální rychlost a stabilitu připojení.
PENB ke stažení zde
Parkování je bezproblémové. Přímo u domu je dostatek volných míst.
Lokalita. Žďár, který žije
Žďár nad Sázavou je městem, které v posledních letech prochází modernizací veřejného prostoru. Díky své velikosti a dostupnosti nabízí plnou občanskou vybavenost. Školy, školky, obchody, služby i dostatek zeleně. Byt se nachází v klidné části města s výbornou dostupností všeho potřebného.
Shrnutí:
-
Dispozice: 2+1
-
Podlahová plocha bytu: 55 m²
-
Lodžie: 4,42 m²
-
Zvětšená koupelna (7 m²) s vanou i sprchou
-
Kuchyně ve tvaru U s vestavěnými spotřebiči a dojezdy
-
Optický internet, nová plastová okna
-
Fungující SVJ, udržovaný cihlový dům
-
Orientace východ a západ. Přirozeně světlý byt
-
Parkování u domu bez problémů
CENA bytu je 4.500.000,-Kč včetně provize RK
Máte zájem?
Rád vám byt osobně představím. Napište mi pár slov o sobě a vašem záměru. Preferuji osobní přístup a férové jednání.















